Irodaház a belváros kapujában

  • 292 000 000Ft
Sopron, Győri út 32

Áttekintés

Ingatlan ID: OS-10452
  • Iroda
  • Ingatlan típusa

Leírás

Eladó irodaházunk Sopron belvárosának kapujában, a Győri út és a Csengery utca találkozásánál, az Erzsébet kórház közelében. A kedvező elhelyezkedésnek és a körültekintő tervezésnek köszönhetően az ingatlan minden olyan adottsággal rendelkezik, amire egy sikeres vállalkozásnak szüksége van!

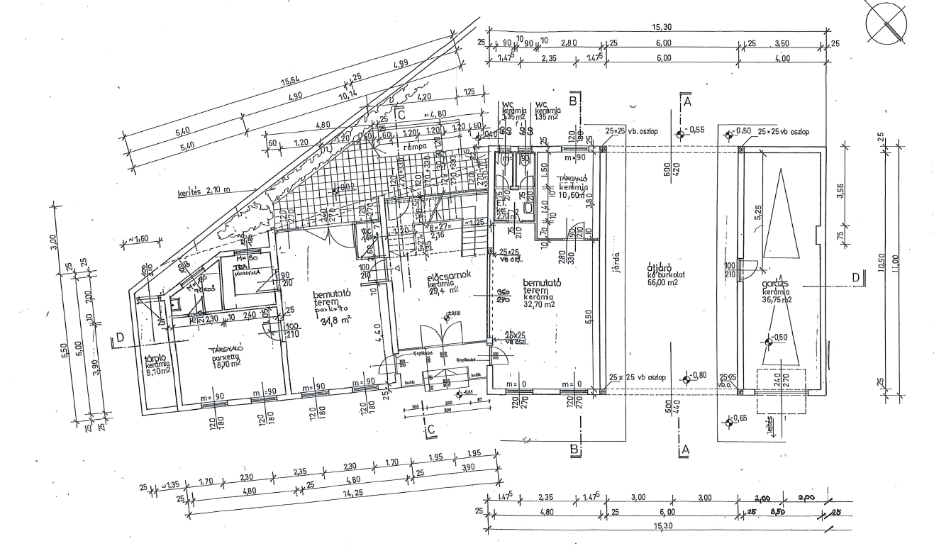
A kétemeletes ingatlan földszinten két teljesen külön zárható, és az utcáról megközelíthető üzlethelyiség található. Bent két tárgyaló, valamint számos különálló, tágas és komfortos iroda is helyet kapott, amelyek könnyűvé teszik a munkavégzést. Az épületben dolgozók és leendő ügyfeleik számára a déli oldalon elhelyezett klímaberendezések biztosítják a nyáron is kellemes munkakörnyezetet. Az irodához tartozik egy garázs és egy térkövezett parkoló is, így egyszerre akár 9 autó elhelyezése is megoldható, de a gyalogtávon belül található buszmegállónak köszönhetően könnyű dolga van a tömegközlekedéssel érkezőknek is.

Az ingatlan jelenleg klasszikus irodaként funkcionál, de a rendelkezésre álló tér bővíthető és átalakítható. A beépíthető tetőtérnek és az egybe nyitható irodáknak köszönhetően az épület egyéb más üzleti célokat is képes betölteni, legyen szó egészségügyi intézményről, ügyfélszolgálatról vagy akár egy új cégközpontról.

Ingatlan jellemzői

Updated on szeptember 12, 2025 at 12:58 du.
  • Ingatlan ID: OS-10452
  • Ár: 292 000 000Ft
  • Ingatlan mérete: 452 m²
  • Garázs: 1
  • Építési év: 2001
  • Ingatlan típusa: Iroda
  • Ingatlan állapota: ELADÓ
  • Cím Győri út 32
  • Város Sopron
  • Megye Győr-Moson-Sopron
  • Postai irányítószám 9400
  • Ország Magyarország

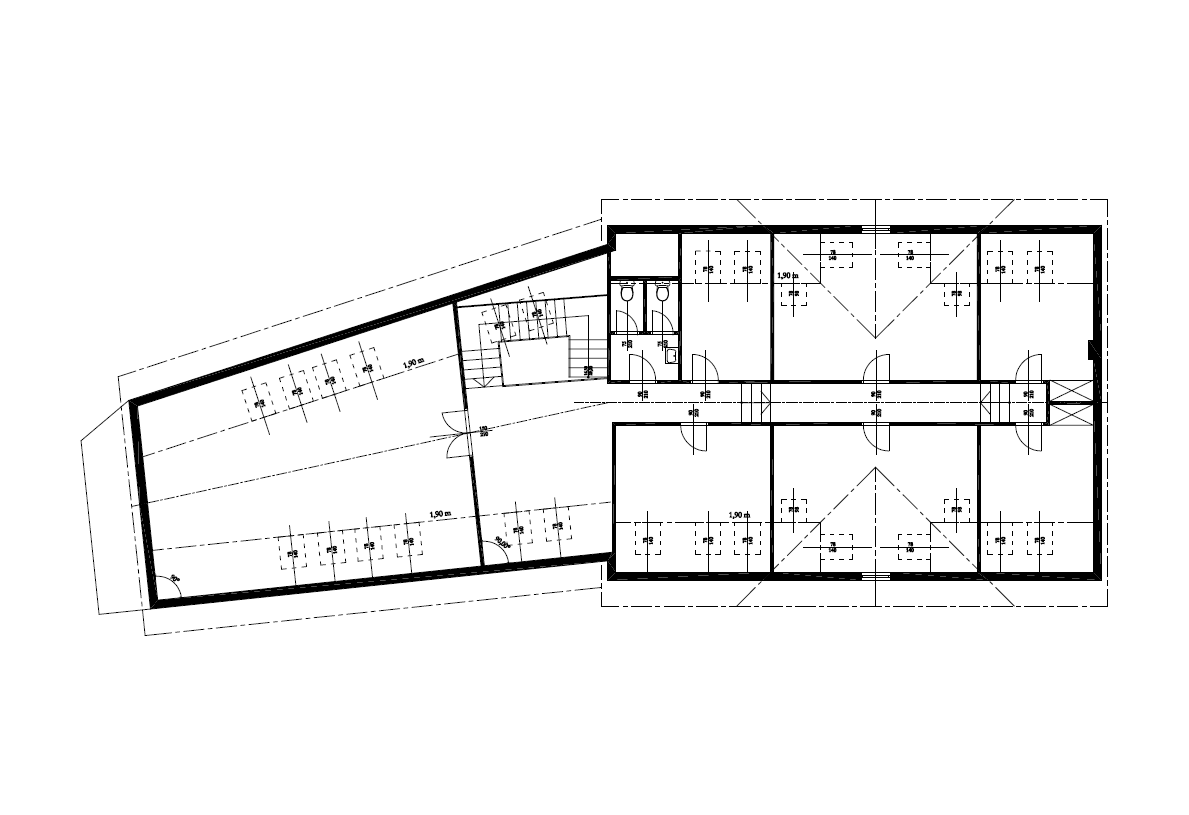
Alaprajzok

image

Description:

image

Description:

image

Description:

image

Description:

image

Description:

Compare listings

Compare